Get more information and view the latest offers directly on our website.
Prime Residential Plot for Sale with ready planning permit for 2 luxury villas in Potamos Germasogeias area in Mesovounia Limassol.
Price: €850,000 + VAT
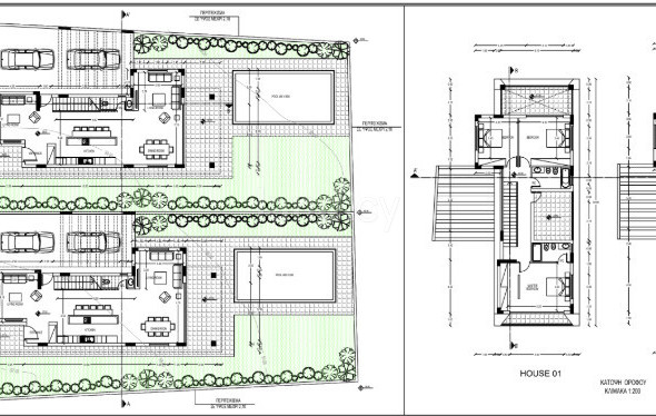
An exceptional 1,017 m plot located in the prestigious residential area of Mesovounia, surrounded exclusively by high-end luxury villas. This premium property offers a unique investment opportunity and comes with an approved planning permit for the development of two luxury villas.
The plot features a regular square shape, allowing for optimal architectural design and efficient land use. It is situated within the Ka9 residential planning zone (100%), designated for residential development.
Key Features:
Plot size: 1,017 m
Building density: 40%
Building coverage: 25%
Maximum floors: 2
Maximum height: 10 meters
Registered road access with frontage
Flat, regular-shaped land
Ideally positioned, the property provides easy access to the highway and is just 10 minutes from both the city center and the sea, offering the perfect balance of convenience and exclusivity.
A rare opportunity to develop two luxury residences in one of the most sought-after residential areas.
| Zone | Cover factor | Build factor | Max floors | Max height | Affected percentage |
|---|---|---|---|---|---|
| Kα9 | 25% | 40% | 2 | - | - |
Get more information and view the latest offers directly on our website.
Get more information and view the latest offers directly on our website.
Get more information and view the latest offers directly on our website.
Get more information and view the latest offers directly on our website.
Get more information and view the latest offers directly on our website.
Get more information and view the latest offers directly on our website.
Get more information and view the latest offers directly on our website.
Get more information and view the latest offers directly on our website.
Get more information and view the latest offers directly on our website.
Get more information and view the latest offers directly on our website.
Get more information and view the latest offers directly on our website.
Get more information and view the latest offers directly on our website.
This property is advertised by Lextrus Real Estate (R.N. 1239, L.N. 612/E). While we request all advertisers to provide correct details, we do not verify the information provided by the advertiser and we can not be held responsible for any inaccuracies. We recommend to seek independent legal advise prior to acquiring any property.